☆整骨院開業☆のお手伝いをさせていただきました
| お客様のご要望 | 「ネイルサロンとして使用されていたテナントをリニューアルして整骨院をオープンさせたい」「自分で出来る所は行い、無理な部分をお願いしたい」・・という内容の相談でご来店いただきました |
|---|
|
施工事例データ
| 住所 | 出雲市白枝町 |
|---|---|
| 施工箇所 | 内装リニューアル |
| 施工内容 | 内装全面クロス貼り換え・便器リニューアル・照明器具交換 |
| 費用 | 138万円 |
| 工期 | 14日間 |
| 物件概要 | 軽量鉄骨造平屋建て |
| 使用商材 | TOTOウォシュレット一体型便器”ZJ1”・LIXIL小型自動水栓機能付き手洗い器・TOTOペーパーホルダー |
| ご提案内容 | 今回はご提案というよりは ”お客様の使いやすいように”を最重要項目として関わらせていただき 色の提案や照明計画、動線等について打ち合わせをさせていただきながら進めさせていただきました。仕様決定後も 工事中に打ち合わせを行い 変更のご要望等その都度対応させていただきながら工事を進めさせていただきました。 |
|---|
施工前はこちら
既存の造作カウンターは撤去いたします
既存の間仕切り壁の位置はすべて変更となります
黒が木調だったカウンターも全撤去いたします
照明器具も全てリニューアルいたします
トイレ空間も節水タイプで掃除性の高い便器にリニューアルいたします
流し台空間は全撤去いたします
フォーシンクによる施工中の様子
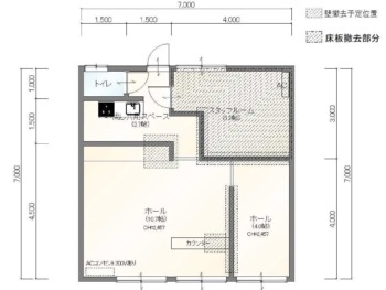
既存の図面が無かった為作成させていただきました
お客様と打ち合わせを重ね 内装のプランが決定いたしました
まずは内部の解体を進めていきます
造作のカウンター・収納も解体していきます
コチラのカウンターは全撤去せずに活かして仕上げていきます
床は既存の上からお客様が床仕上げ材を施工されます
全開放された室内空間になりました
電気配線・下地補強等必要な個所は壁下地を改修します
施工が完了しました
内部設備も設置完了です
開業のお祝いもたくさん☆
照明器具はダウンライトで空間を彩ります
明るい木目基調の開放的な清潔感のある空間になりました
便器は自動洗浄・手洗い器は自動水栓の”新しい生活様式”仕様です
流し台スペースはシンプルな手洗いスペースに




